Hỗ trợ tư vấn 1: 0383478272
Hỗ trợ tư vấn 2: 0979010683
Hỗ trợ tư vấn 3:
0986784306
Hỗ trợ tư vấn 4: 0989777682
Hỗ trợ kỹ thuật: 0977284799
Hỗ trợ tư vấn 1: 0383478272
Hỗ trợ tư vấn 2: 0979010683
Hỗ trợ tư vấn 3:
0986784306
Hỗ trợ tư vấn 4: 0989777682
Hỗ trợ kỹ thuật: 0977284799
1. Giới thiệu chung
Van góc giảm áp TGA-113A nhãn hiệu TLSH-France là van chữa cháy giảm áp dạng góc (angle valve) được thiết kế chuyên dụng cho hệ thống chữa cháy, có khả năng giảm áp suất đầu ra ổn định, đảm bảo an toàn cho vòi phun và thiết bị PCCC. Van vận hành bằng tay vặn (handwheel), kết nối ren theo chuẩn ISO 228-1, dễ dàng kết nối với khớp nối nhanh thông qua bộ adapter nhôm.
Sản phẩm được sơn đỏ tiêu chuẩn, dễ nhận diện trong hệ thống chữa cháy, có cấu tạo chắc chắn bằng gang dẻo, đồng và thép không gỉ, phù hợp với điều kiện môi trường khắc nghiệt.
Van được kiểm định theo quy chuẩn của PCCC Việt Nam.

2. Ứng dụng
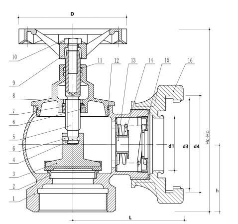
3. Cấu tạo & Vật liệu

|
STT |
Bộ phận |
Vật liệu |
|
1 |
Thân van (Body) |
Gang dẻo (Ductile iron) |
|
2 |
Đế (Seat) |
Đồng (Brass) |
|
3 |
Đĩa van (Disc) |
Gang dẻo + NBR |
|
5 |
Ty van (Stem) |
Thép không gỉ |
|
8 |
Nắp van (Bonnet) |
Gang dẻo |
|
9 |
Tay vặn (Handwheel) |
Gang dẻo |
|
11–12 |
Gioăng làm kín (O-rings) |
Cao su (Rubber) |
|
14 |
Lò xo (Spring) |
Inox (Stainless steel) |
4. Thông số kỹ thuật
5. Kích thước tổng thể
|
DN (mm) |
L (mm) |
d1 (mm) |
d3 (mm) |
d4 (mm) |
Hc (mm) |
Ho (mm) |
h (mm) |
D (mm) |
|
50 |
95 |
43 |
77 |
84 |
160 |
185 |
65 |
95 |
|
65 |
100 |
57 |
93 |
102 |
180 |
195 |
75 |
95 |
6. Ưu điểm nổi bật